Products
News
更新時間:2018-07-11

|
公稱通徑(mm)
|
DN15--DN1200
|
|||
|
公稱壓力(PN )
|
1.6MPa--40.0MPa
|
|||
|
公稱壓力PS
|
強度試驗
|
2.4MPa--60MPa
|
||
|
密封試驗
|
2.0MPa--52.0MPa
|
|||
|
材料\材料代號
|
C
|
P
|
R
|
|
|
主要零件
|
閥體
|
WCB
|
ZG1Cr18Ni9Ti
|
ZG0Cr18Ni12Mo2Ti
|
|
蝶板
|
2Cr13
|
1Cr18Ni9Ti
|
1Cr18Ni12Mo2Ti
|
|
|
閥桿
|
2Cr13
|
1Cr18Ni9Ti
|
1Cr18Ni12Mo2Ti
|
|
|
密封圈
|
增強聚四氟乙烯 對位聚苯
|
|||
|
填料
|
聚四氟乙烯 柔性石墨
|
|||
|
適用工況
|
適用介質
|
水、蒸汽、油品
|
硝酸類
|
醋酸類
|
|
適用溫度
|
-28℃~300℃
|
|||
|
執行器
|
型號
|
GT系列、SW系列、AT系列、AW系列
|
||
|
氣源壓力
|
0.4-1.3Mpa
|
|||

|
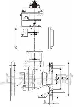
公稱通徑DN(mm)
|
尺寸(mm)
|
執行器型號
|
||||||
|
L
|
D
|
D1
|
D2
|
b
|
f
|
Z-Φd
|
||
|
15
|
108
|
95
|
65
|
45
|
14
|
2
|
4-14
|
GT52/GT63K
|
|
20
|
117
|
105
|
75
|
55
|
14
|
4-14
|
GT63/GT63K
|
|
|
25
|
127
|
115
|
85
|
65
|
14
|
4-14
|
GT63/GT83K
|
|
|
32
|
140
|
135
|
100
|
78
|
16
|
4-18
|
GT83/GT83K
|
|
|
40
|
165
|
145
|
110
|
85
|
16
|
3
|
4-18
|
GT83/GT110K
|
|
50
|
178
|
160
|
125
|
100
|
16
|
4-18
|
GT83/GT110K
|
|
|
65
|
190
|
180
|
145
|
120
|
18
|
4-18
|
GT110/GT127K
|
|
|
80
|
203
|
195
|
160
|
135
|
20
|
8-18
|
GT127/GT127K
|
|
|
100
|
305
|
215
|
180
|
155
|
20
|
8-18
|
GT127/GT160K
|
|
|
125
|
256
|
245
|
210
|
185
|
22
|
8-18
|
GT160/GT190K
|
|
|
150
|
394
|
280
|
240
|
210
|
24
|
8-23
|
GT190/GT210K
|
|
|
200
|
457
|
335
|
295
|
265
|
26
|
12-23
|
GT254/BAW20S
|
|
|
250
|
533
|
405
|
335
|
320
|
30
|
12-25
|
BAW17/BAW20S
|
|
